본문 바로가기
5분 꿀정보

디에이치 방배 일반분양 평면도 확인해봐요!

by W_action 2024. 7. 15.
반응형

디에치 방배 일반분양으로 59~114㎡ 평형으로 총 1,244세대를 공급합니다. 꽤 큰 규모로 일반 분양을 진행하는데요. 청약 신청하시기 전 평면도 확인은 필수겠죠. 아래에서 단위세대 별 디에이치 방배 평면도 확인해 보세요!

 

디에이치 방배 평면도

아래에서 디에이치 세대별 평면도 확인해 보세요!

 

 

목차


 

     

    1. 59㎡(약 24평) A, B, C 형

    디에이치 방배 59㎡ 약 24평으로, A,B,C 3개 타입으로 일반 분양 진행 예정입니다.

    A,B,C 모두 방 3개, 욕실 2개지만, 3가지 타입이 각각 형태가 다릅니다.

    A타입의 경우 가운데 거실을 기준으로 주방/식당과 방 3개가 둘러싸고 있으며,

    B타입은 방 1개만 거실과 인접하며, 나머지 2개 방은 복도를 기준으로 붙어있습니다.

    C타입의 경우 방 3개와 거실이 직선상에 놓여있습니다.

     

    일반분양 3개 타입 합쳐 일반 분양 총 215세대입니다.

     

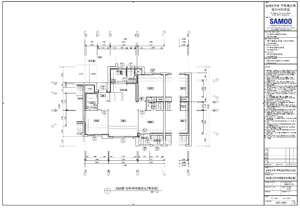
    디에이치 방배 59A
    디에이치 방배 59A

     

    디에이치 방배 59B
    디에이치 방배 59B

     

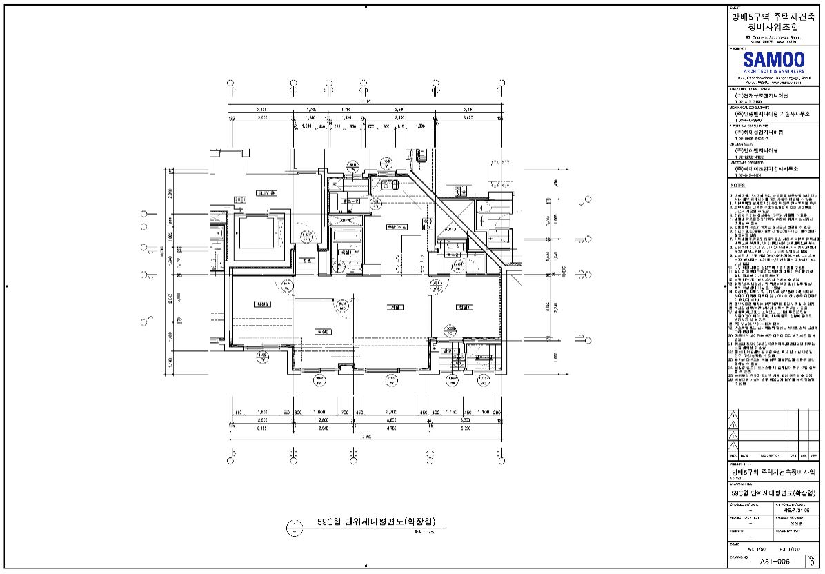
    디에이치 방배 59C
    디에이치 방배 59C

     

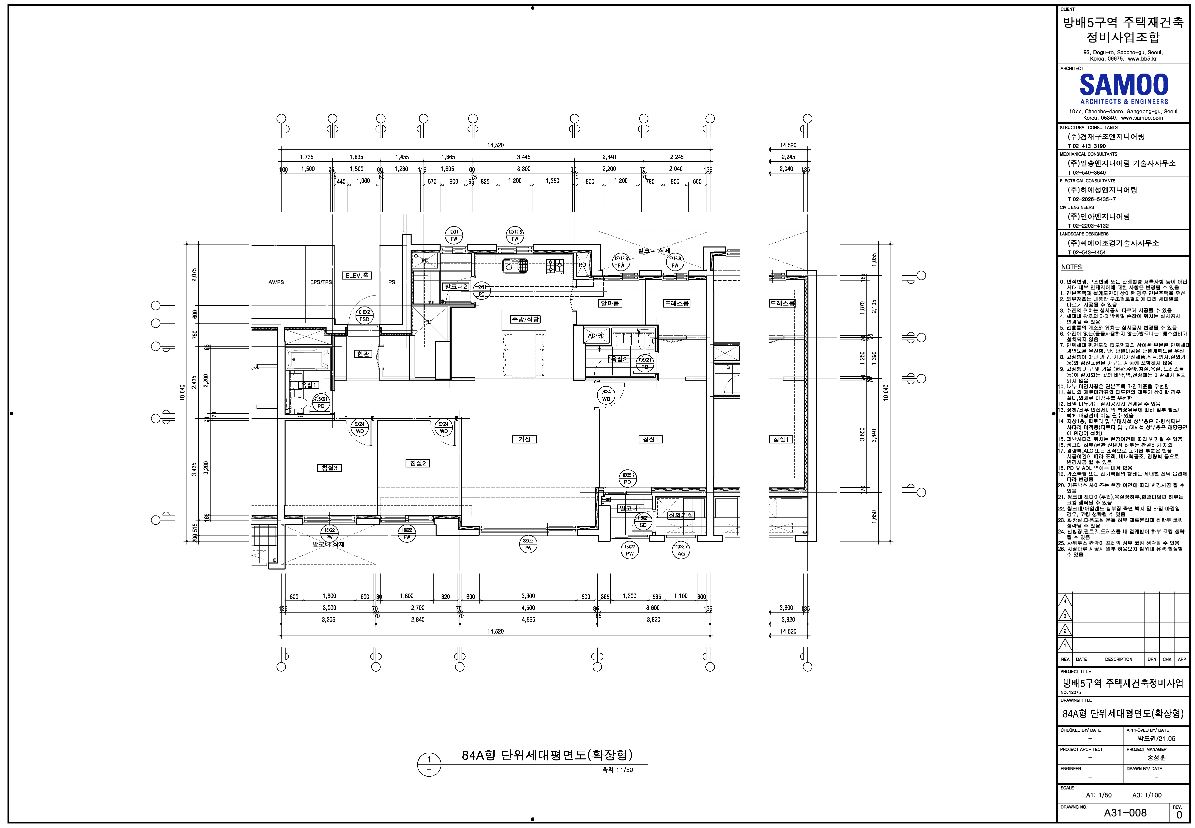
    2. 84㎡(약 36평) A, B, C 형

    A, B타입은 거의 비슷한 구조의 대칭형이고, C타입의 형태만 다른 형태입니다.

    이른바 국민평수라 불리는 84㎡ 약 36평형인 만큼, 디에이치 방배 일반 분양 공급되는 평형 중 가장 많은 물량이 공급됩니다. 일반분양 956세대입니다.

     

    디에이치 방배 84A
    디에이치 방배 84A

     

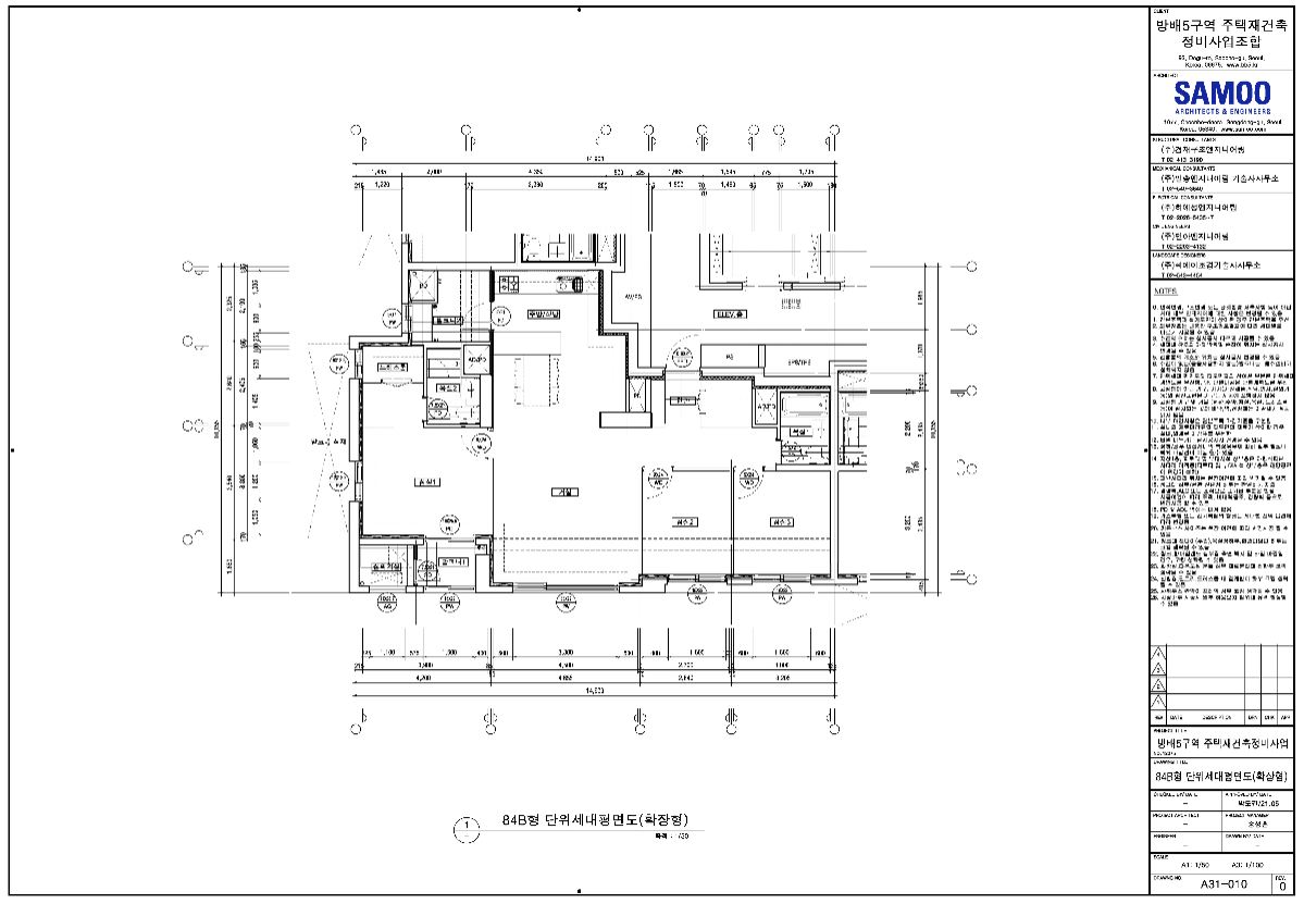
    디에이치 방배 84B
    디에이치 방배 84B

     

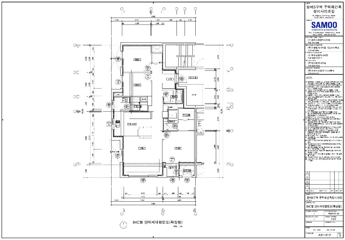
    디에이치 방배 84C
    디에이치 방배 84C

     

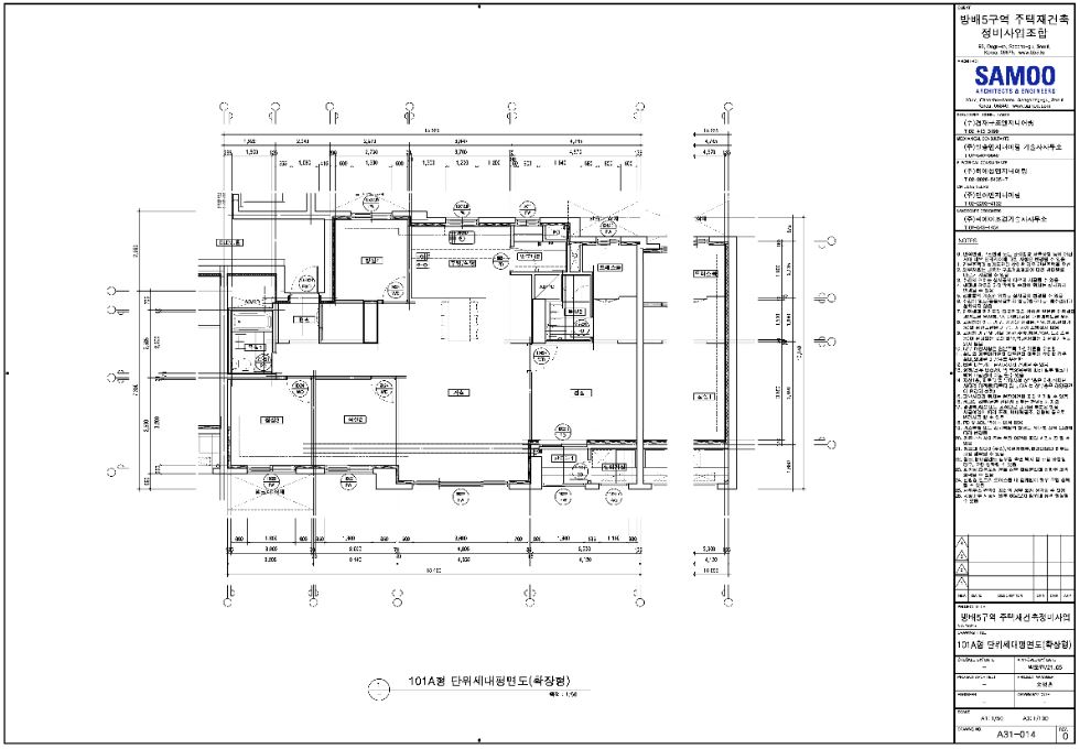
    3. 101㎡(약 39평) A, B 형

     

    디에이치 방배 일반 분양 물량 중 큰 비중은 아니지만, 두 번째로 큰 평형으로 일반분양 58세대입니다.

    구조 자체는 59, 84 타입과 크게 다르지 않습니다.

     

    디에이치 방배 101A
    디에이치 방배 101A

     

    디에이치 방배 101B
    디에이치 방배 101B

     

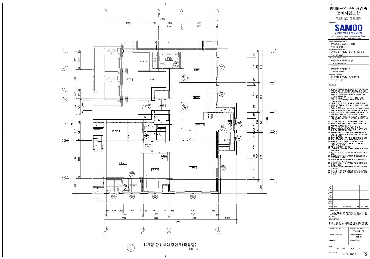
    4. 114㎡(약 44평) A, B 형

    디에이치 방배 일반분양 평형 중 가장 큰 114㎡ 약 44평형입니다.

    일반 분양 총 15세대입니다.

     

    디에이치 방배 114A
    디에이치 방배 114A

     

    디에이치 방배 114B
    디에이치 방배 114B

     


    이상으로 디에이치 방배 일반 분양으로 공급되는 세대별 평면도 살펴보았습니다. 청약을 노리시기 전에 평면도와 분양 물량을 잘 알아보시고 전략적으로 청약 신청하셔서 꼭 당첨되시길 바라겠습니다!

     

    반응형