디에치 방배 일반분양으로 59~114㎡ 평형으로 총 1,244세대를 공급합니다. 꽤 큰 규모로 일반 분양을 진행하는데요. 청약 신청하시기 전 평면도 확인은 필수겠죠. 아래에서 단위세대 별 디에이치 방배 평면도 확인해 보세요!

아래에서 디에이치 세대별 평면도 확인해 보세요!
≣ 목차
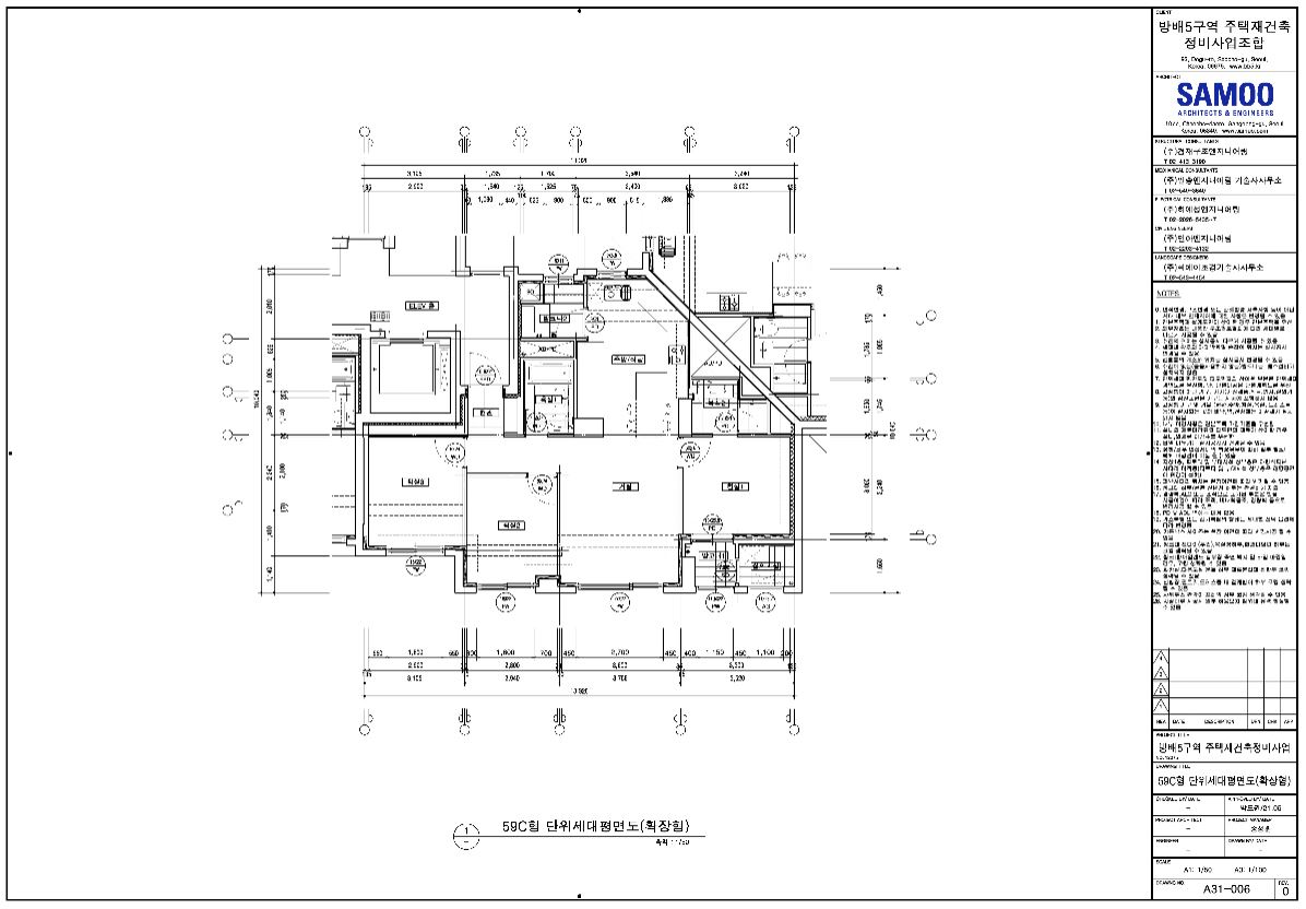
1. 59㎡(약 24평) A, B, C 형
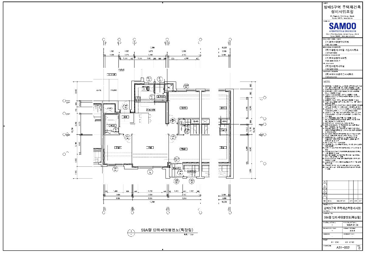
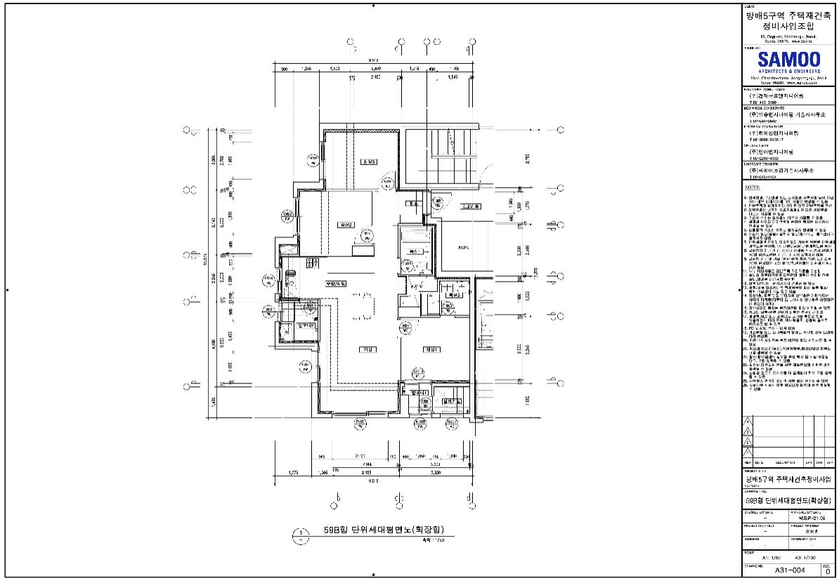
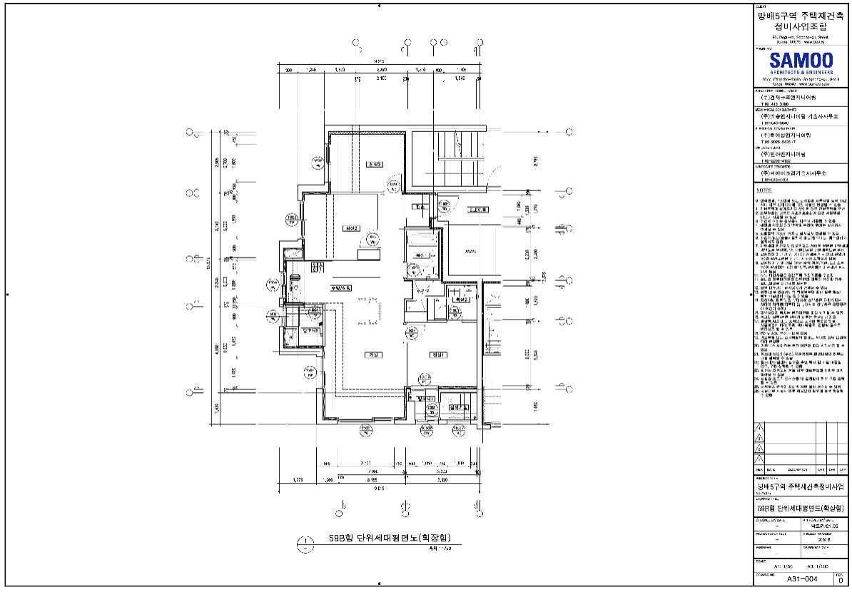
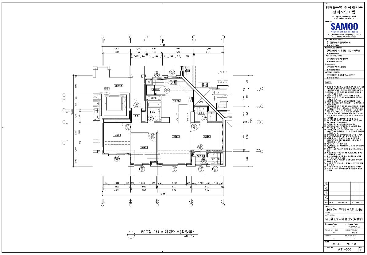
디에이치 방배 59㎡ 약 24평으로, A,B,C 3개 타입으로 일반 분양 진행 예정입니다.
A,B,C 모두 방 3개, 욕실 2개지만, 3가지 타입이 각각 형태가 다릅니다.
A타입의 경우 가운데 거실을 기준으로 주방/식당과 방 3개가 둘러싸고 있으며,
B타입은 방 1개만 거실과 인접하며, 나머지 2개 방은 복도를 기준으로 붙어있습니다.
C타입의 경우 방 3개와 거실이 직선상에 놓여있습니다.
일반분양 3개 타입 합쳐 일반 분양 총 215세대입니다.



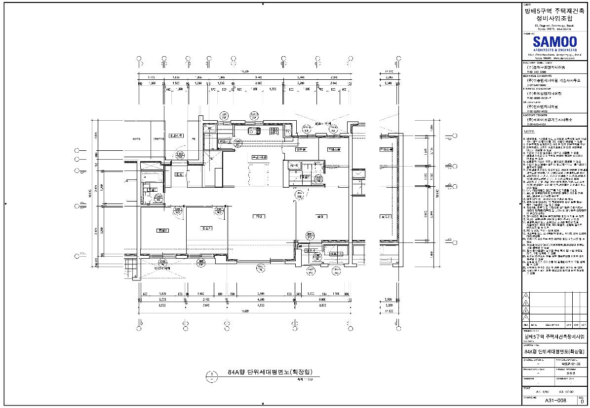
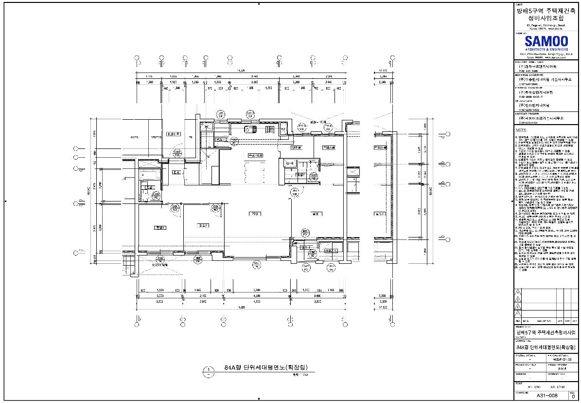
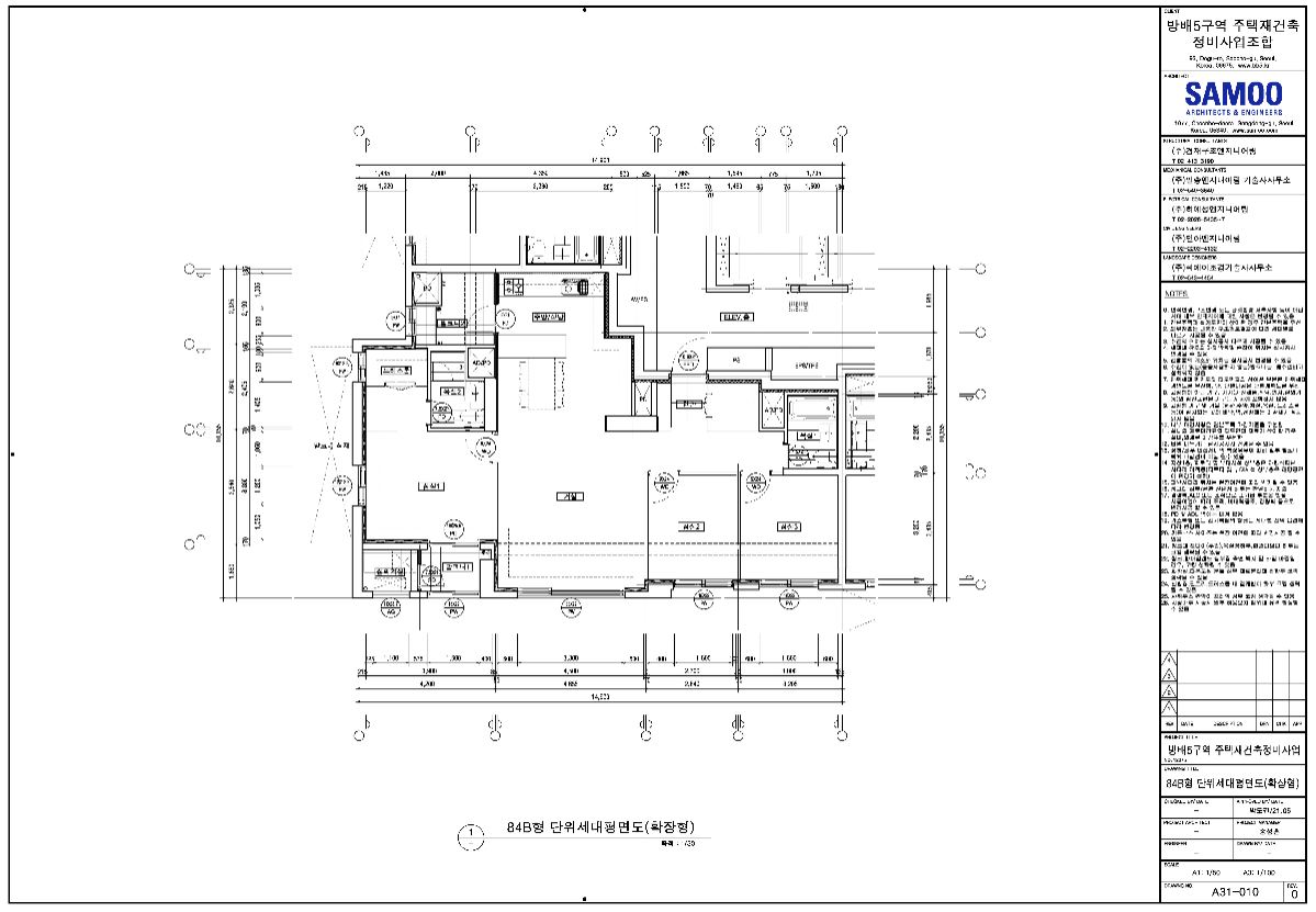
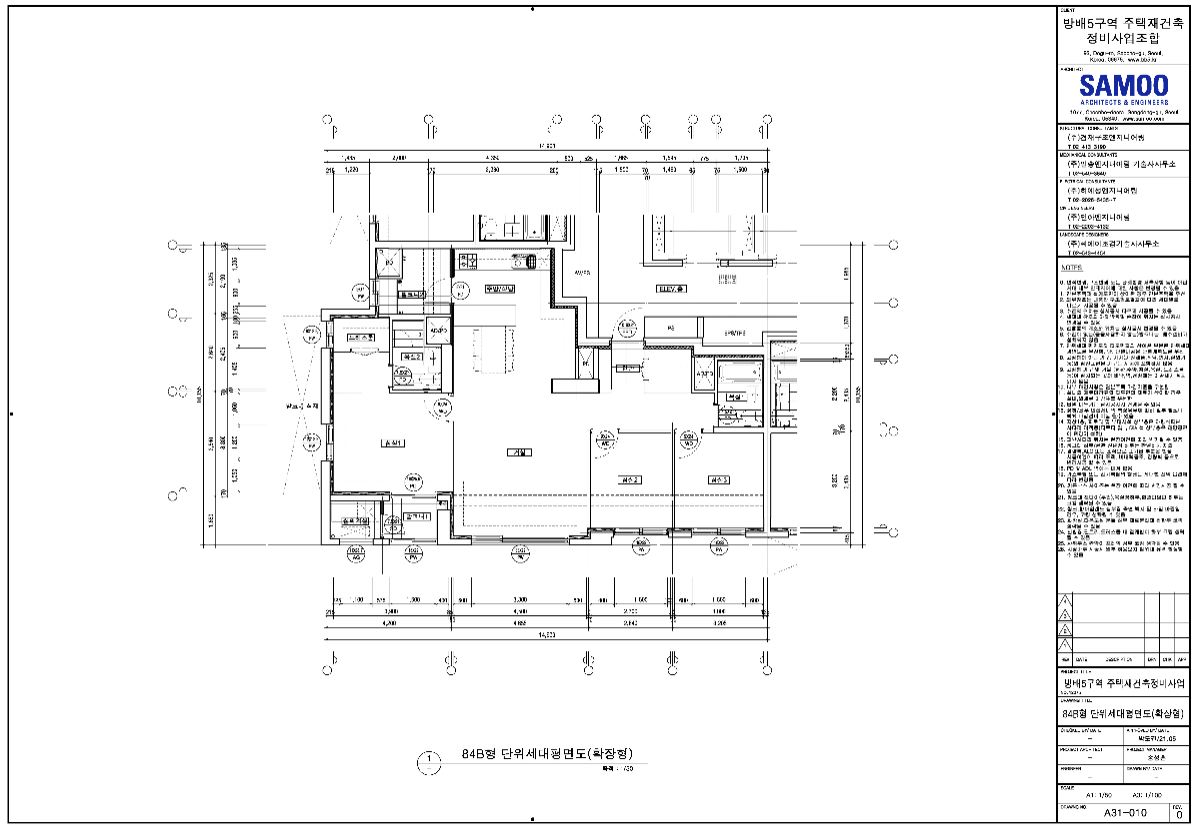
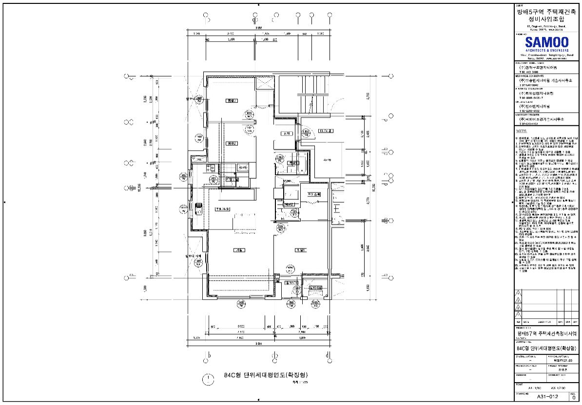
2. 84㎡(약 36평) A, B, C 형
A, B타입은 거의 비슷한 구조의 대칭형이고, C타입의 형태만 다른 형태입니다.
이른바 국민평수라 불리는 84㎡ 약 36평형인 만큼, 디에이치 방배 일반 분양 공급되는 평형 중 가장 많은 물량이 공급됩니다. 일반분양 956세대입니다.



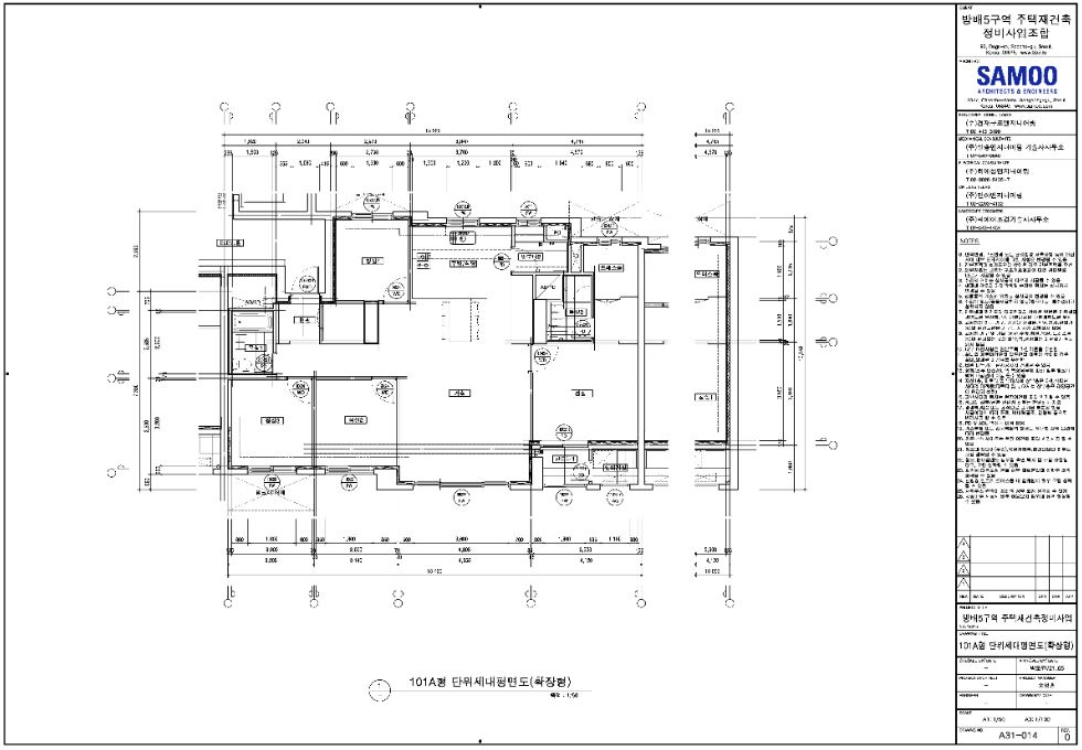
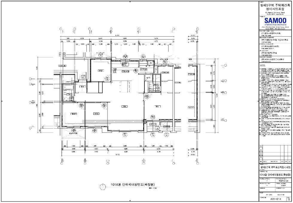
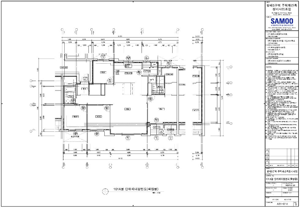
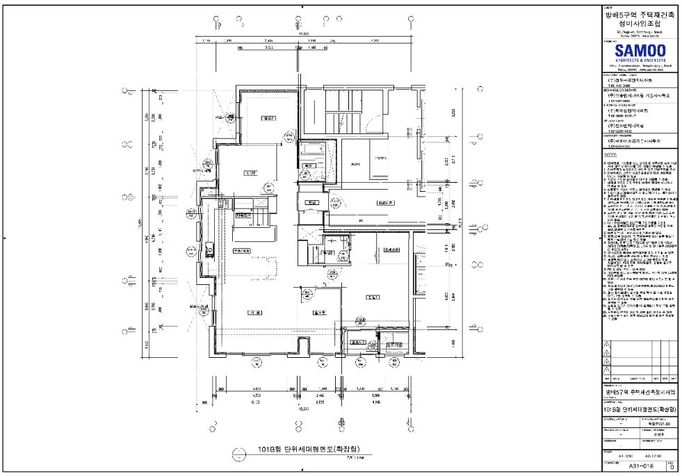
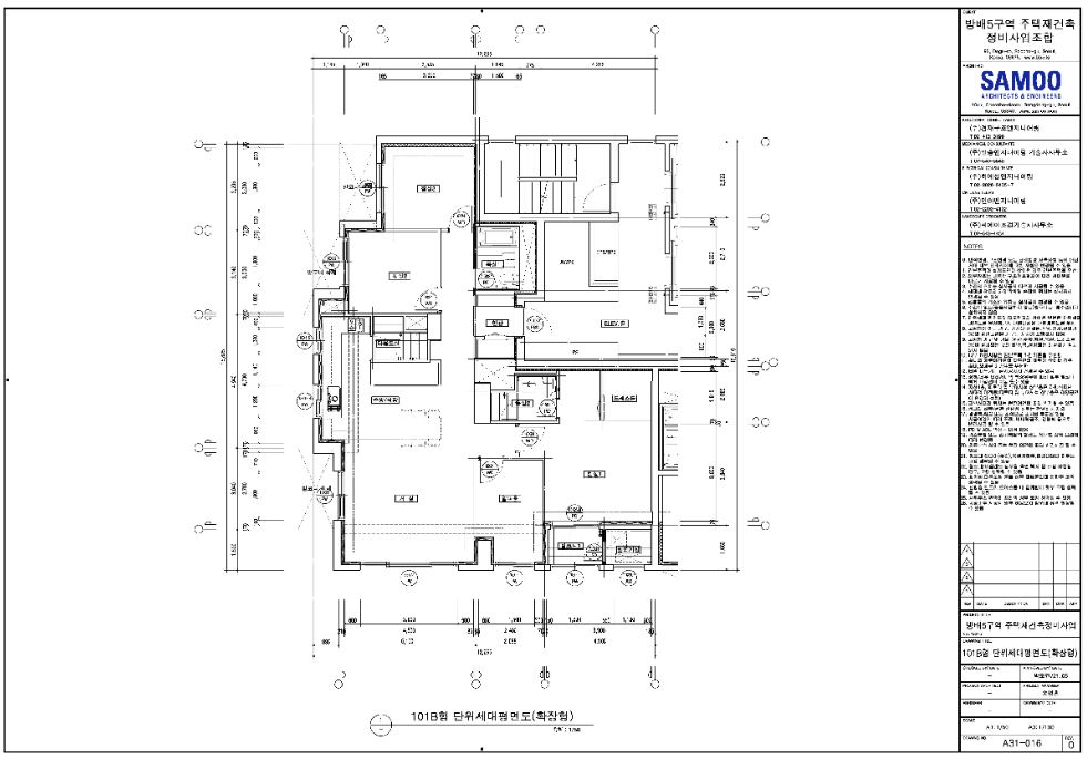
3. 101㎡(약 39평) A, B 형
디에이치 방배 일반 분양 물량 중 큰 비중은 아니지만, 두 번째로 큰 평형으로 일반분양 58세대입니다.
구조 자체는 59, 84 타입과 크게 다르지 않습니다.


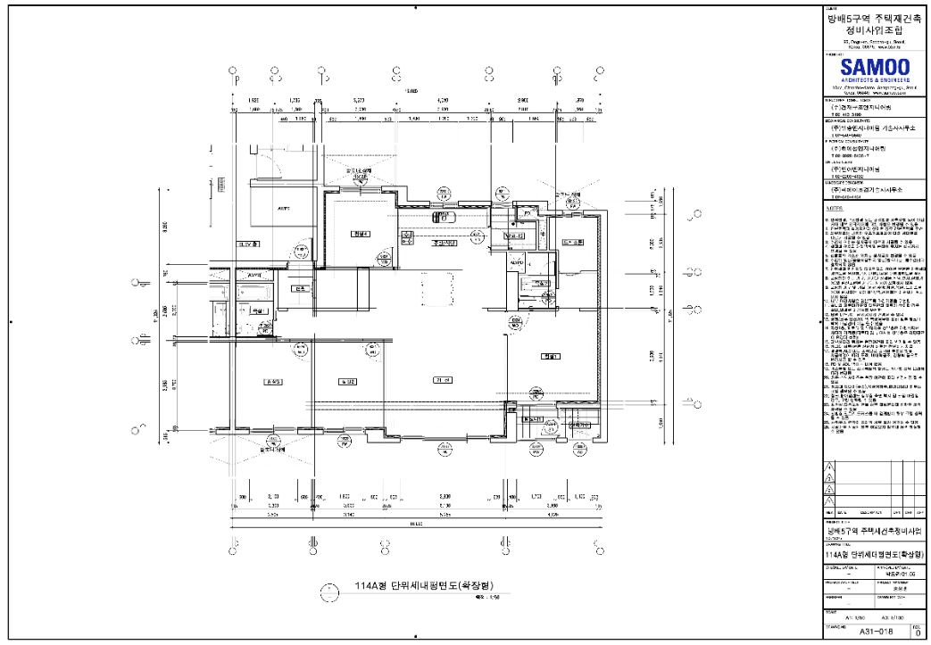
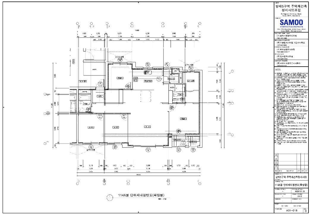
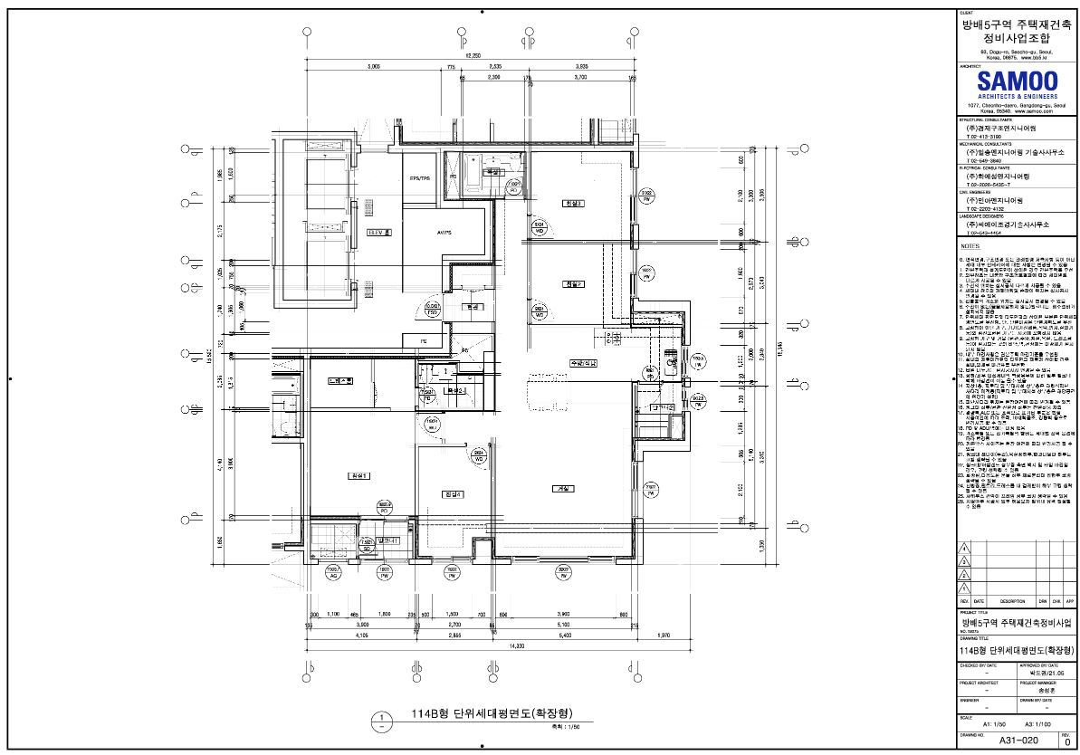
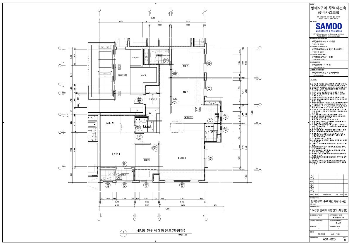
4. 114㎡(약 44평) A, B 형
디에이치 방배 일반분양 평형 중 가장 큰 114㎡ 약 44평형입니다.
일반 분양 총 15세대입니다.


이상으로 디에이치 방배 일반 분양으로 공급되는 세대별 평면도 살펴보았습니다. 청약을 노리시기 전에 평면도와 분양 물량을 잘 알아보시고 전략적으로 청약 신청하셔서 꼭 당첨되시길 바라겠습니다!
'5분 꿀정보' 카테고리의 다른 글
| 니야유금천, 등장인물, 줄거리, 중드 추천 왓챠, 웨이브, 티빙 (1) | 2024.07.16 |
|---|---|
| 디에이치 방배 청약, 일반분양, 평면도 등 총 정리 (0) | 2024.07.16 |
| 무선 예초기, 부탄가스 예초기 장단점, 추천 (0) | 2024.07.15 |
| 카무트 효소(카뮤트 효소) 효능, 부작용, 섭취방법 등 (0) | 2024.07.14 |
| 도곡 래미안 레벤투스 청약(8월), 일반 분양, 평면도까지! (0) | 2024.07.14 |