방배 아크로 리츠 카운티는 빠르면 2024년 9월, 혹은 1월 중으로 청약이 예상되는데요. 아크로 리츠 카운티는 방배 삼익아파트 재건축 아파트이다 보니, 총 707세대 중 140세대 일반 분양이 예정되어있습니다. 하지만, 그럼에도 불구하고 입지 등을 고려했을 때 큰 시세 차익이 기대되며 많은 분들의 주목을 받고 있습니다. 아직 각 일반 분양에 어떤 평형이 분양될지, 각 평형별 몇 세대나 분양될지 발표되지 않았습니다만, 평면도 참고하시어 추후 진행될 청약에 미리 대비하시길 바랍니다.

이 외에도, 최근 많은 관심을 끌고 있는 청약 관련해서 아래 링크를 참고해 주시기 바랍니다.
도곡 래미안 레벤투스 분양 정보 :
도곡 래미안 레벤투스 청약(7월 26일), 일반 분양, 평면도까지!
최근 서울 내 부동산 열기가 다시 살아나며, 브랜드 아파트 신규 분양에 대한 관심이 점차 늘고 있습니다. 그중에서도 강남 주거의 본류라고 할 수 있는 도곡동에 래미안 레벤투스가 2024년 7월
wooyoone.com
방배 디에이치 분양 정보 :
디에이치 방배 청약, 일반분양, 평면도 등 총 정리
디에이치 방배는 강남권의 요지 중 하나인 방배동 946-5번지 일대에 현대건설 하이엔드 브랜드인 디에이치에서 건설하는 단지인데요. 입지부터, 규모 등으로 큰 주목을 받고 있습니다. 반포 래미
wooyoone.com
방배 아크로 리츠 카운티 평면도 확인해보자!
≣ 목차
1. 방배 아크로 리츠 카운티 평형별 세대수
방배 아크로 리츠 카운티는 총 707세대로, 84㎡ 약 24평형이 가장 많은 279 세대를 차지하는 것으로 확인됩니다. 앞서 말씀드린 것처럼 방배 아크로 리츠 카운티는 삼익아파트 재건축 아파트이다 보니, 큰 평형은 조합원 공급 물량일 것으로 예상됩니다. 따라서, 전문가들은 일반 분양 평형은 60㎡ 이하 평형으로 공급이 될 것으로 예상이 된다고 합니다.

| 전용 면적(㎡) | 세대수 |
| 44 | 106 |
| 59 | 106 |
| 75 | 65 |
| 84 | 279 |
| 110 | 68 |
| 121 | 59 |
| 138 | 22 |
| 144 | 2 |
| 합계 | 707 |
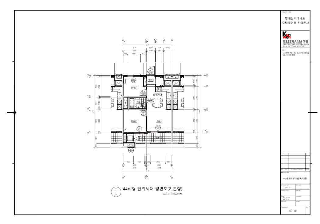
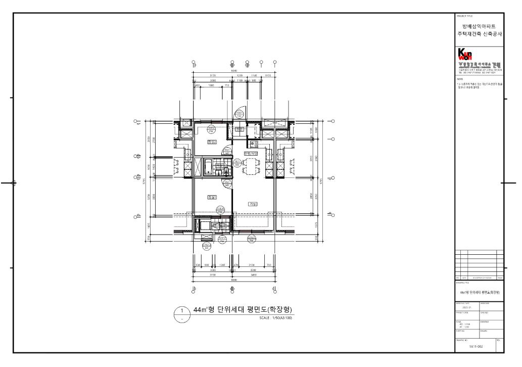
2. 44㎡ (약 18평) 기본, 확장형
방배 아크로 리츠 카운티 44㎡ 약 18평으로, 가장 작은 평수입니다. 1인 가구나 신혼부부가 생활하기에 적합한 평수입니다. 확장형은 기본형에서 발코니를 확장하여 내부 공간을 더 확장한 차이입니다.(아래 다른 평수도 모두 동일합니다)


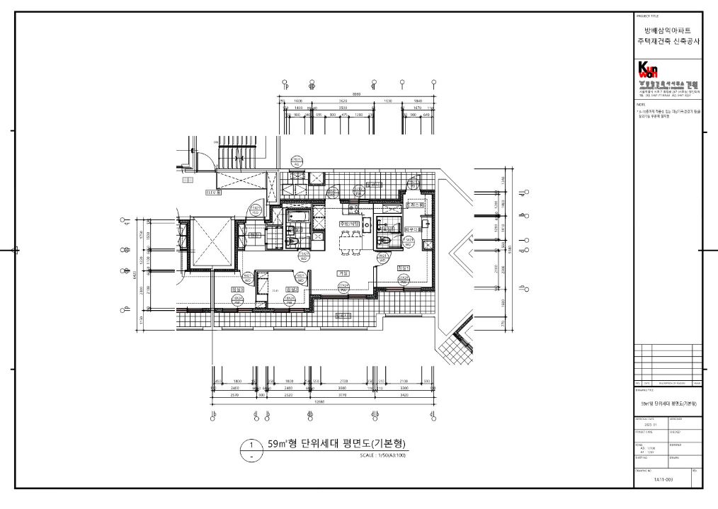
3. 59㎡ (약 24평) 기본, 확장형
방배 아크로 리츠 카운티 59㎡ 약 24평으로, 많은 분들이 찾으시는 평수입니다. 침실이 3개이며, 최근 트렌드에 맞춰 파우더룸, 드레스룸이 배치되어 있습니다.


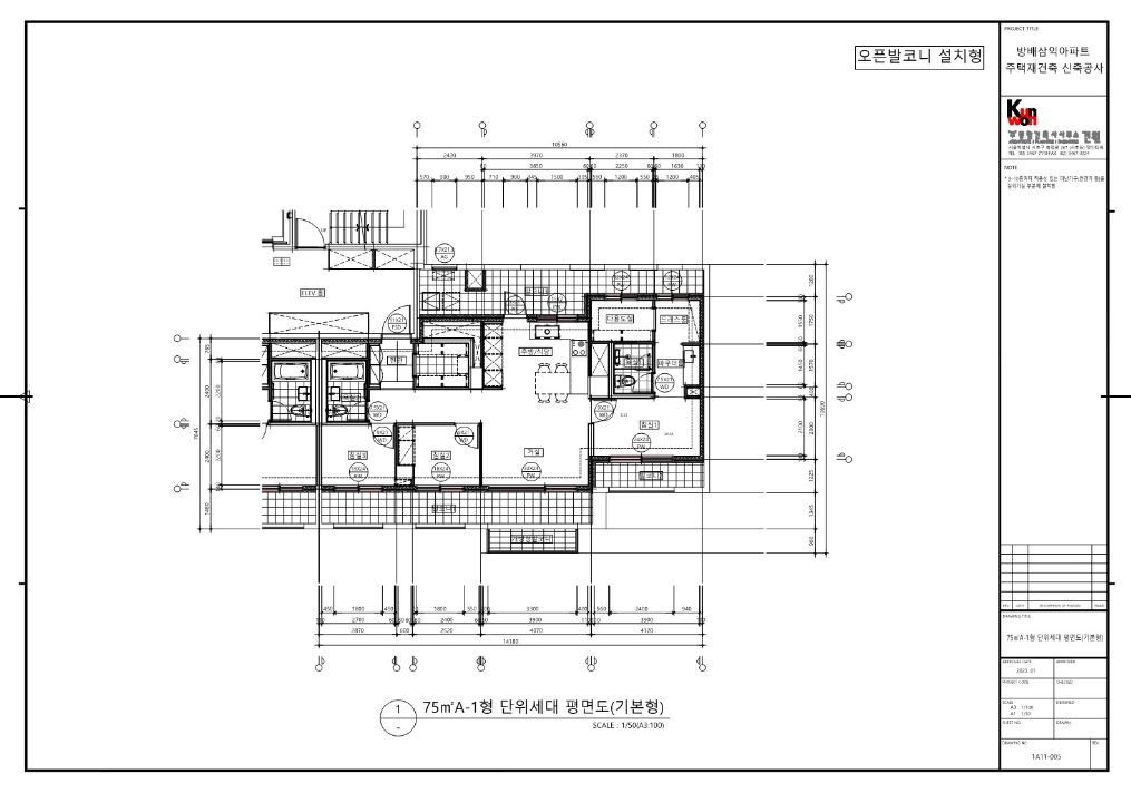
4. 75㎡ (약 29평) A-1, A-2 기본, 확장형
방배 아크로 리츠 카운티 75㎡ 약 29평으로 75㎡타입은 구조는 동일하지만, A-1 타입은 오픈 발코니 설치형이고, A-2 타입은 오픈발코니 미설치형입니다. 판상형으로, 전반적인 형태는 59㎡ 타입과 비슷합니다.




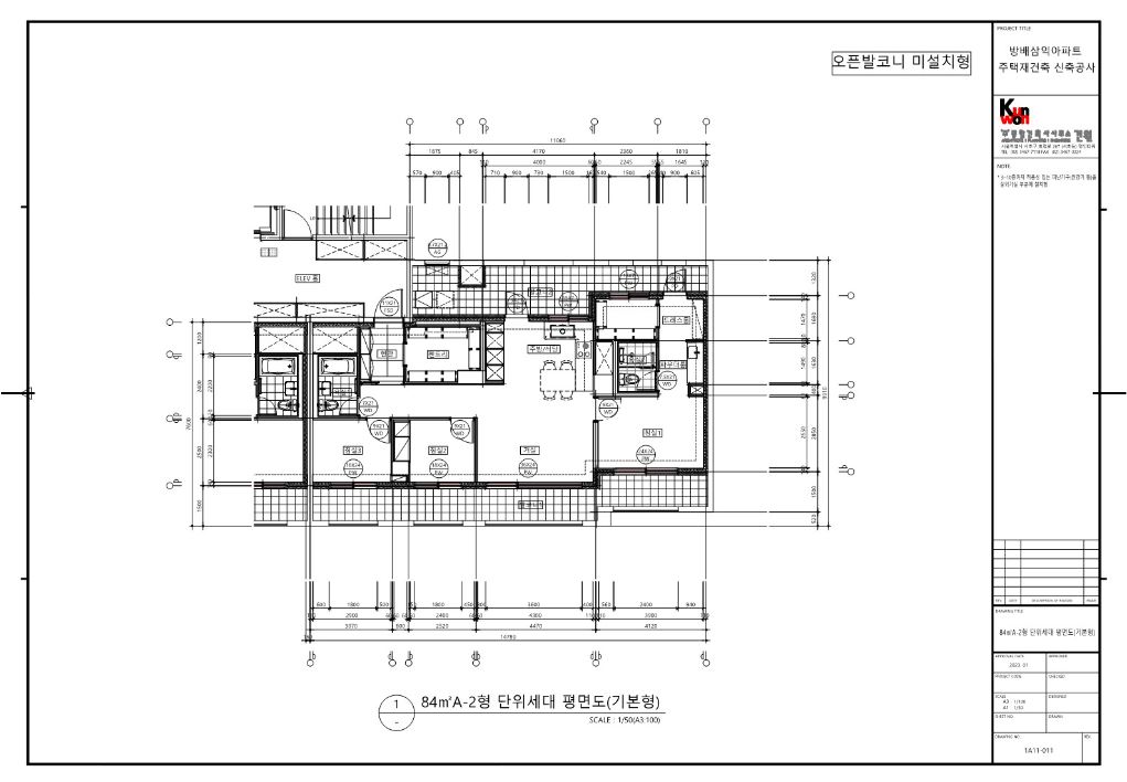
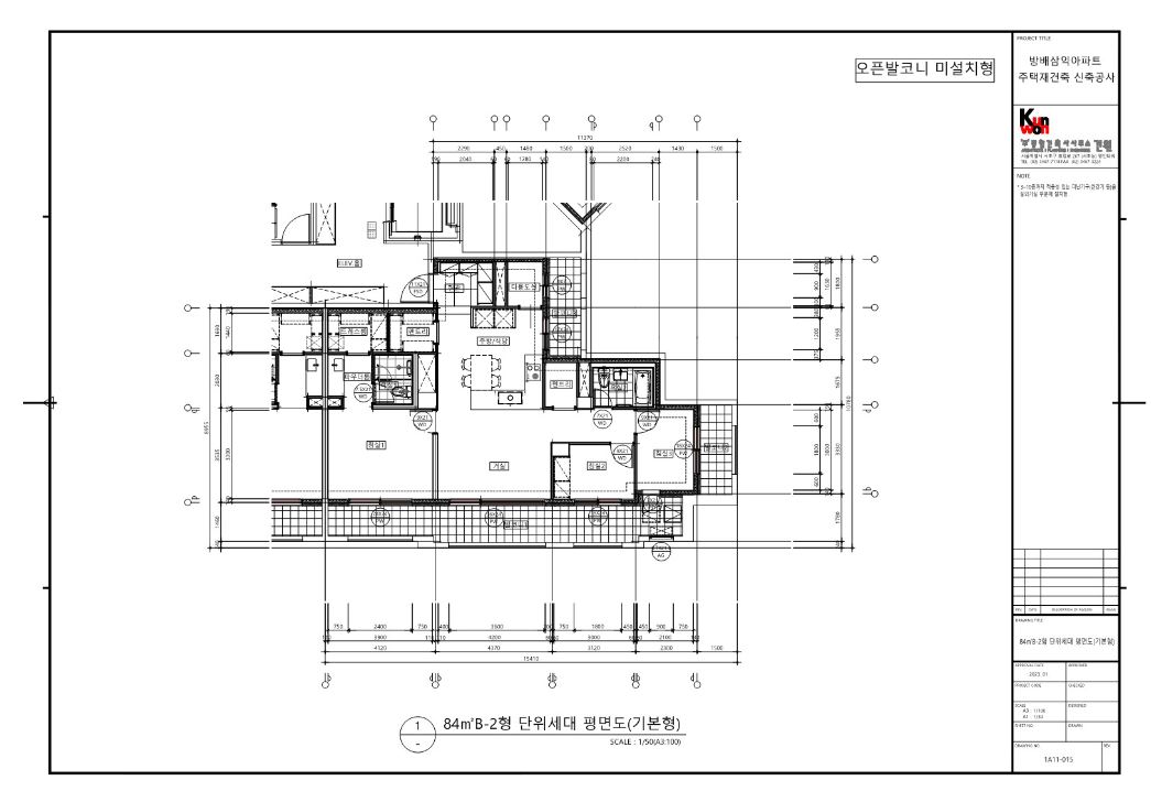
5. 84㎡ (약 33평) A-1, A-2, B-1, B-2 기본, 확장형
방배 아크로 리츠 카운티 84㎡ 약 33평으로 앞서 비교적 작은 평수에 비해서, 기본 4 타입, 확장까지 하면 총 8 타입으로 공급됩니다. 또, 그만큼 가장 많은 세대수를 차지하는 평형입니다. A-1, A-2 / B-1, B-2 타입 간 차이는 마찬가지로 오픈발코니 설치 여부이며 A와 B는 구조가 다릅니다. A타입의 경우 판상형이며, B타입은 타워형이라고 할 수 있습니다.








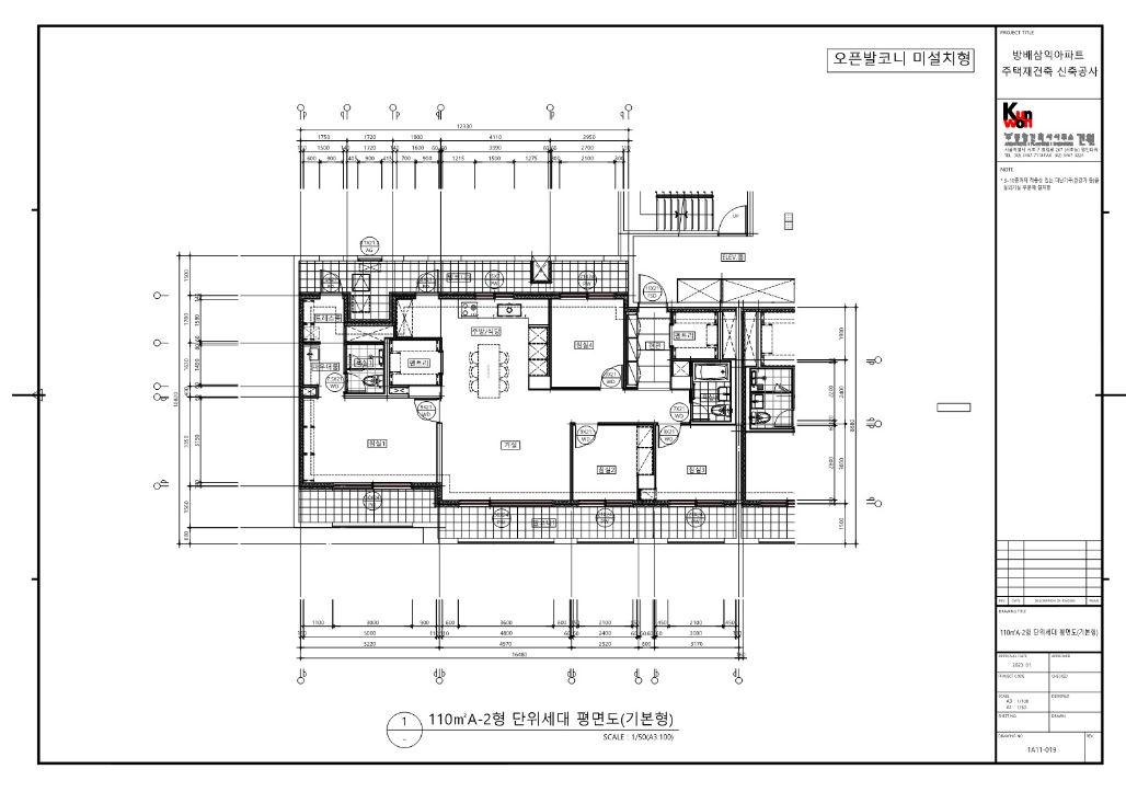
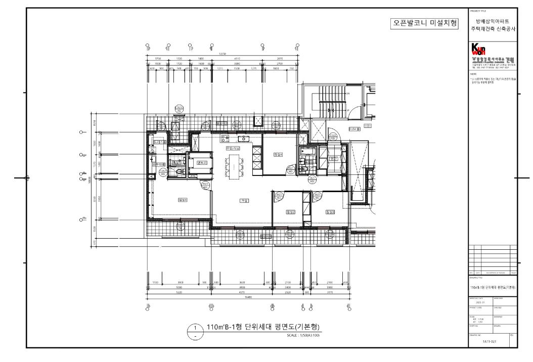
6. 110㎡ (약 43평) A-1, A-2, B-1 기본, 확장형
방배 아크로 리츠 카운티 110㎡ 약 43평으로 A타입은 다른 타입과 마찬가지로 오픈발코니 설치 여부에 따라 A-1, A-2로 공급이 되지만 B타입은 오픈발코니가 설치되지 않는 B-1로만 공급됩니다.






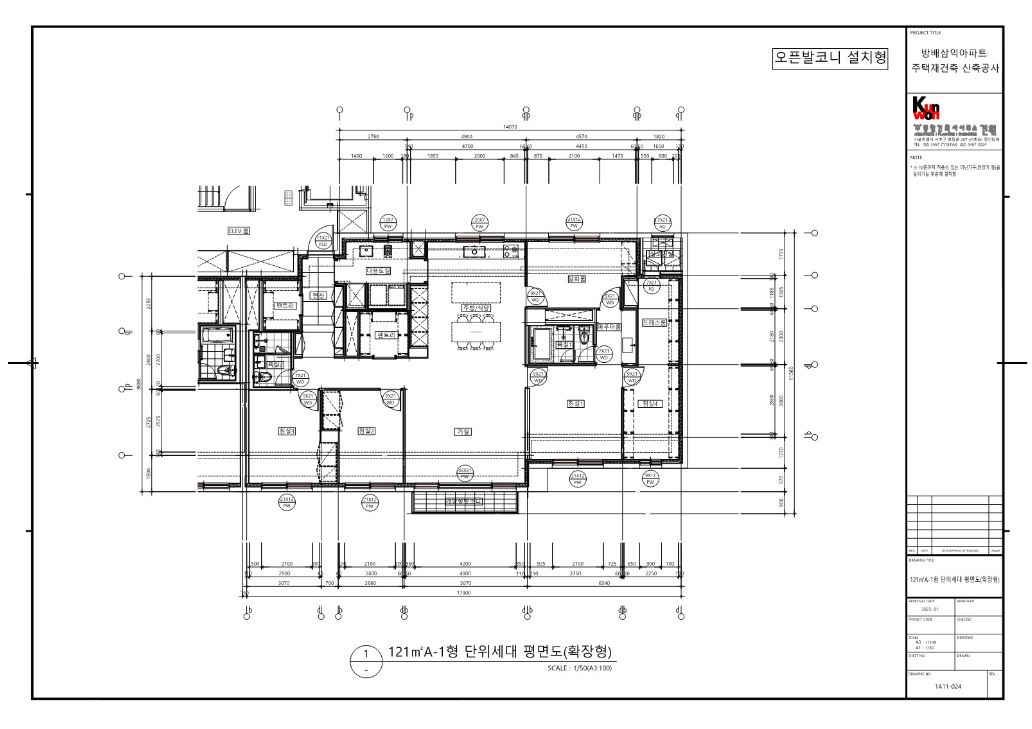
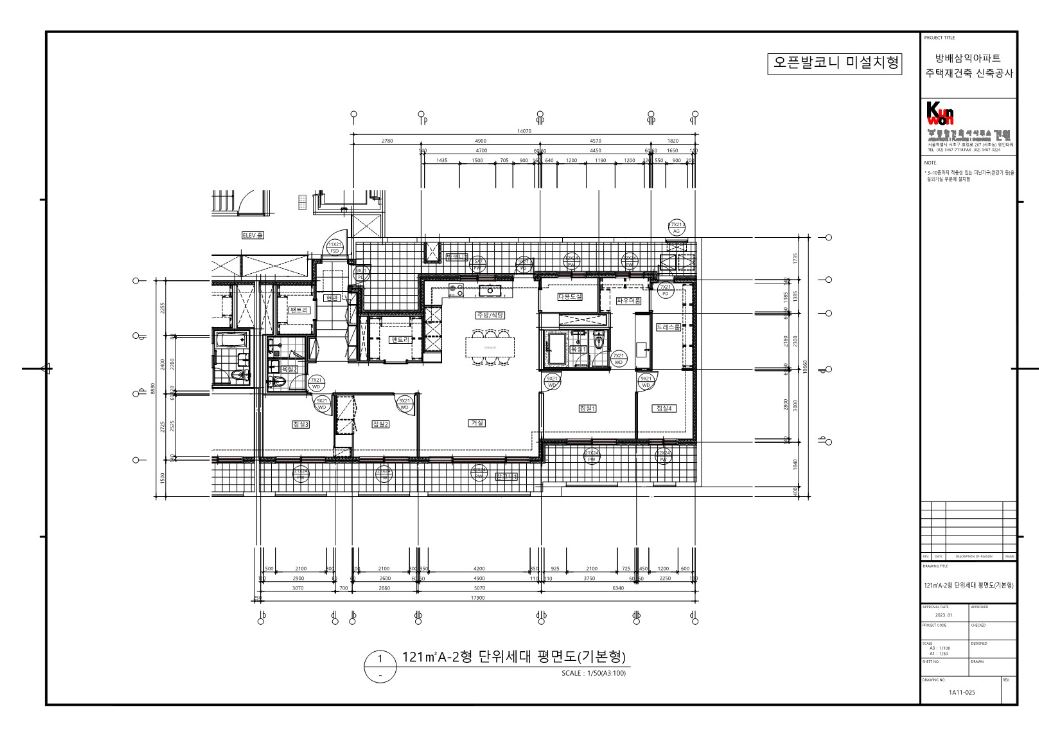
7. 121㎡ (약 47평) A-1, A-2 기본, 확장형
방배 아크로 리츠 카운티 121㎡ 약 47평입니다. 방이 총 4개로 대가족이 생활하기에 적합합니다. 오픈발코니 설치 여부에 따라 A-1, A-2 및 발코니 확장여부에 따라 기본, 확장 총 4가지 타입으로 공급됩니다.




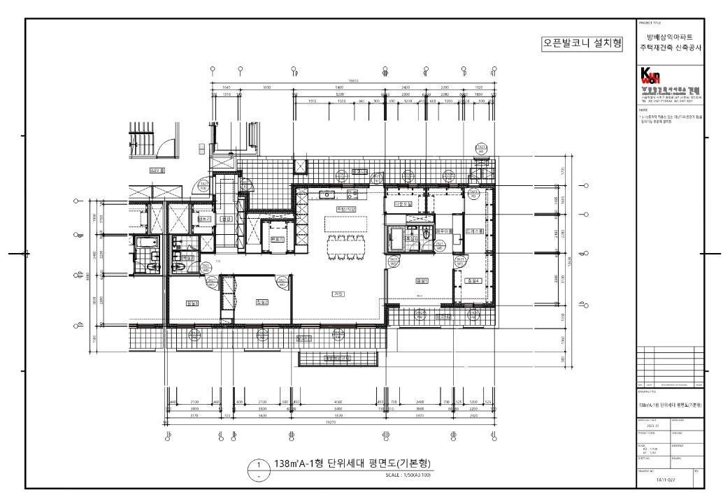
8. 138㎡ (약 54평) A-1, A-2 기본, 확장형
방배 아크로 리츠 카운티 138㎡ 약 54평으로, 방배 아크로 리츠 카운티 평형 중 2번째로 큰 평형입니다. 구조는 121 타입과 거의 비슷합니다만, 전반적으로 좀 더 넓습니다.




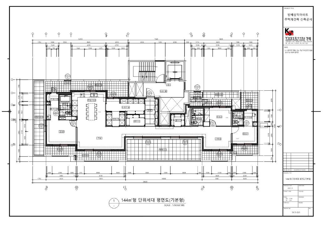
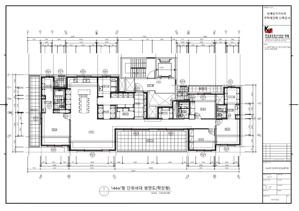
9. 144 (약 56평) 기본, 확장형
방배 아크로 리츠 카운티 144㎡ 약 56평으로, 가장 크고 가장 적은 세대수(2세대)의 타입입니다.


이상으로 방배 아크로 리츠 카운티 평면도를 살펴보았습니다. 분양 공고가 발표되고, 청약이 시작된 후에 평면도를 살펴보시는 것보다 미리 준비하시어 전략적으로 고민해 보시는 걸 추천드립니다. 또, 아크로 리츠 카운티 분양 정보 관련해서 더 궁금하신 분들은 아래에서 확인하시길 바라겠습니다.
'5분 꿀정보' 카테고리의 다른 글
| 로보락 보상판매 ~8월 30일까지 (0) | 2024.08.08 |
|---|---|
| 방배 아크로 리츠 카운티 분양가, 일반 분양 등 총정리 (0) | 2024.08.07 |
| 농촌 체류형 쉼터 10평 이내 12월부터 설치, 가격 등 핵심 총정리 (3) | 2024.08.06 |
| 농촌 체류형 쉼터 10평 가격 알아보기 (0) | 2024.08.06 |
| 파리올림픽 프랑스 양궁 바티스트 아디스 나이, 인스타 등 알아봐요! (0) | 2024.08.05 |