방배 래미안 원페를라는 2024년 하반기에 분양예정인 단지로, 방배에 위치하여 청약에 성공하기만 하면 로또라는 이야기가 나오며, 벌써 많은 분들이 관심 있게 보시는 단지인데요. 오늘은 방배 래미안 원페를라의 일반 분양이 진행되는 59㎡, 84㎡ 평형 평면도를 살펴보겠습니다.

방배 래미안 원페를라 평면도 확인하고 로또 청약 성공하세요!
≣ 목차
1. 방배 래미안 원페를라 일반 분양

방배 래미안 원페를라는 'One' + 'Perla'(스페인어로 진주라는 뜻)의 이름과 같이 방배동의 진주와 같은 아파트로 2025년 11월 우뚝 설 예정입니다. 일반분양으로는 각각 59㎡는 141세대, 84㎡가 324세대 공급될 예정인데요. 합쳐서 무려 465세대 공급 예정으로,일반분양 공급 물량이 많은 편이며 또한 로또 청약이라 불리는만큼 미래가치와 가장 많이 찾으시는 황금평형대인걸 생각하면 청약에 꼭 도전하셔야 하는 단지가 아닐까 생각이 듭니다.
아직 청약이 시작되지 않았지만, 정보를 놓치지 않기 위해서는 관심단지로 등록해 두시는 것도 추천드립니다.
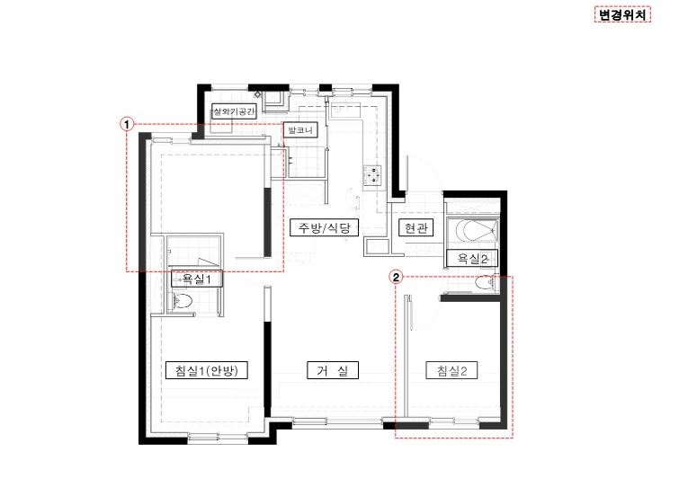
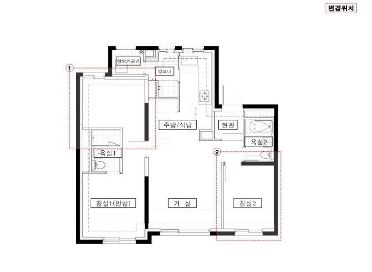
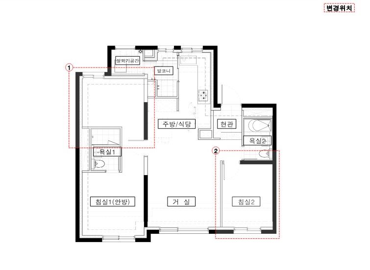
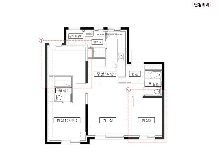
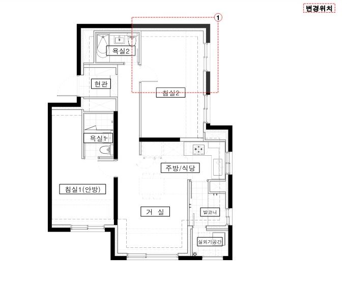
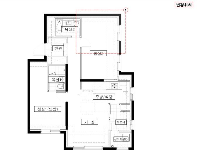
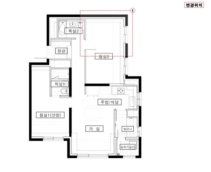
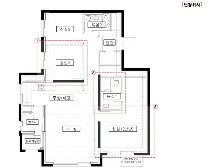
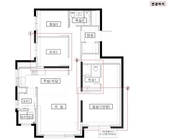
2. 방배 래미안 원페를라 59㎡(약 25평) 평면도
방배 래미안 원페를라 일반분양 공급되는 주택형 중 59㎡형은 A, B, C 3개 타입으로, 각 타입별 일반 공급 물량은 확인되지 않습니다만, 해당 평형의 전체 세대는 아래와 같습니다. 일반분양으로 59㎡평형은 총 141세대 공급됩니다.
| 구분 | 세대 | 합계 | |
| 59㎡ | A타입 | 238 | 348 |
| B타입 | 84 | ||
| C타입 | 26 | ||
래미안 원페를라 59㎡ A타입은 거실을 중심으로 대칭형에 가까운 형태, B타입은 타워형, C타입은 판상형으로 모두 거실과 방2개, 욕실 2개가 포함되어 신혼부부 혹은 소가족에게 적합한 평형입니다.



<함께 보면 좋은 글>
디에이치 방배 청약, 일반분양, 평면도 등 총 정리
디에이치 방배는 강남권의 요지 중 하나인 방배동 946-5번지 일대에 현대건설 하이엔드 브랜드인 디에이치에서 건설하는 단지인데요. 입지부터, 규모 등으로 큰 주목을 받고 있습니다. 반포 래미
wooyoone.com
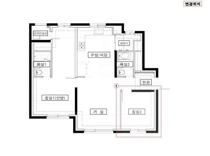
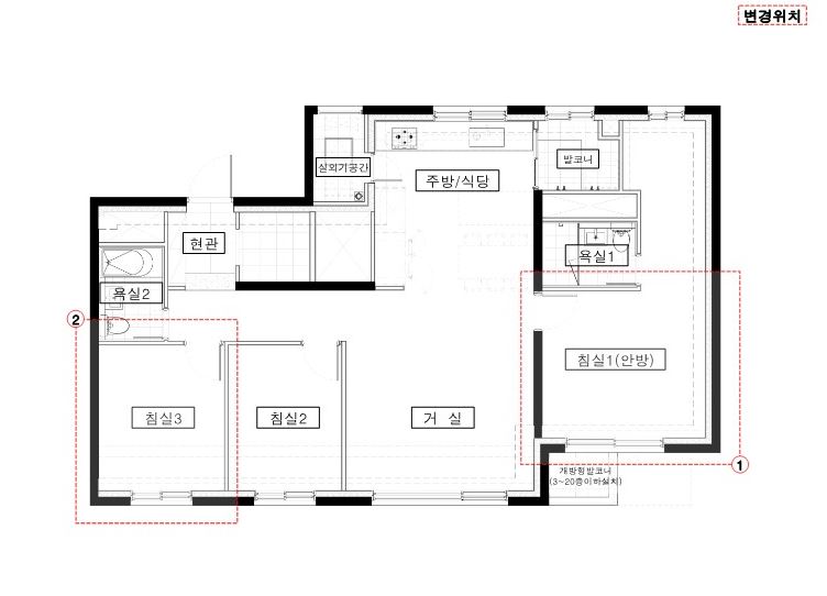
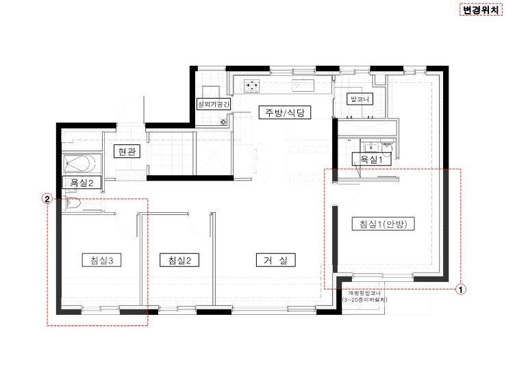
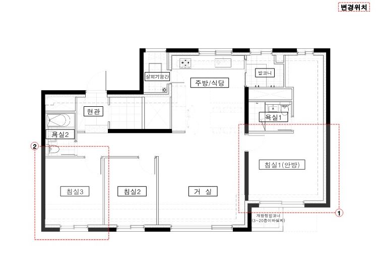
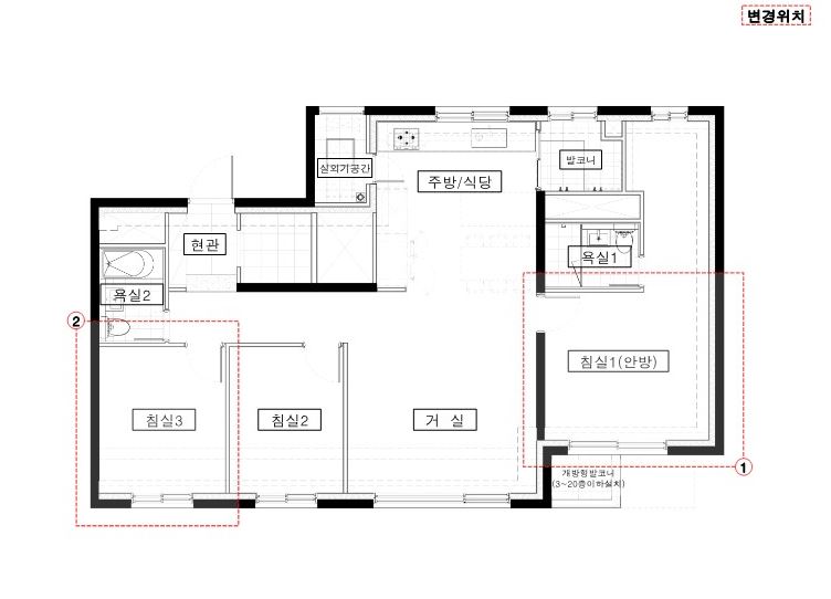
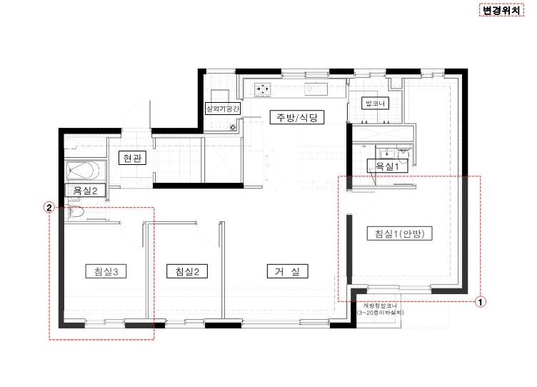
3. 방배 래미안 원페를라 84㎡(약 34평) 평면도
방배 래미안 원페를라 일반분양 공급되는 주택형 중 84㎡형은 A, B, C, C1, D, D1, D2 세부적으로 총 7개 타입으로, 마찬가지로 각 타입별 일반 공급 물량은 확인되지 않습니다만, 해당 평형의 전체 세대는 아래와 같습니다. 일반분양으로 84㎡평형은 총 324세대 공급됩니다. 전체 세대가 484세대인데, 그중에 324세대 공급이면 약 70%로 꽤 많은 물량인 것이 확인됩니다.
| 구분 | 세대 | 합계 | |
| 84㎡ | A타입 | 75 | 485 |
| B타입 | 168 | ||
| C타입 | 64 | ||
| C1타입 | 103 | ||
| D타입 | 9 | ||
| D1타입 | 33 | ||
| D2타입 | 33 | ||
래미안 원페를라 84㎡ C타입과 C1타입의 차이는 현관-욕실 2의 위치 차이이며 외에는 차이가 없습니다. 또 D, D1, D2타입의 경우 발코니 쪽에 차이가 있습니다. 형태는 59㎡ 평형과 비슷하지만 방이 3개로, 자녀가 있는 가족이 생활하기에도 충분한 크기입니다.





이상으로 방배 래미안 원페를라 평면도를 살펴보았습니다. 방배의 하나의 진주라는 이름의 의미만큼이나 청약이 기대되는 단지 중 하나입니다. 최근 방배, 도곡 쪽에 신축 아파트 단지 청약에 많은 관심이 쏠리고 있는데요. 아무래도 미래가치나 인프라 등이 완성형에 가까운 지역 특성 덕인 것으로 보입니다. 청약을 노리신다면 미리 준비하시고 꼭 성공하시길 바라겠습니다!
<관련글 함께 보기>
방배 아크로 리츠 카운티 평면도 확인하기
방배 아크로 리츠 카운티는 빠르면 2024년 9월, 혹은 1월 중으로 청약이 예상되는데요. 아크로 리츠 카운티는 방배 삼익아파트 재건축 아파트이다 보니, 총 707세대 중 140세대 일반 분양이 예정되
wooyoone.com
'5분 꿀정보' 카테고리의 다른 글
| 한일톱텐쇼 투표하기, 투표방법 (0) | 2024.08.22 |
|---|---|
| 방배 래미안 원페를라 일반분양, 청약, 평면도 등 (1) | 2024.08.21 |
| 9/5 축구 국가대표 팔레스타인전 예매, 중계정보 (0) | 2024.08.20 |
| 윈도우11 작업 표시줄 사라짐 해결방법 총정리 (0) | 2024.08.19 |
| 9호 태풍 종다리, 태풍 경로, 대비책 등 (1) | 2024.08.19 |