과천 프레스티어 자이는 2024년 9월 일반분양 예정에 있는 총 1,445 가구의 대단지로, 청약 전부터 과천 대장 아파트가 될 것으로 예상되고 있습니다. 오늘은 과천 프레스티어 자이의 일반분양 평형의 평면도를 함께 확인해 보겠습니다.

평면도 확인 전에, 프레스티어 자이 홍보 영상 이벤트로 스타벅스 아메리카노 기프티콘을 받을 수 있는 이벤트 하고 있으니, 아래 사진을 눌러, 이벤트 참여하시고 스타벅스 아메리카노도 받아 가세요! (정답은 3번, 1인 독서실)
과천 프레스티어 자이 일반분양 공급 평면도 바로 확인!
≣ 목차
1. 과천 프레스티어 자이 일반 분양 평형별 공급 가구
프레스티어 자이는 총 287 가구 일반 분양예정입니다. 각 평형별 공급 가구 수는 아래와 같습니다.
| 평형 | 가구수 |
| 49㎡ | 44 |
| 59㎡ | 70 |
| 74㎡ | 98 |
| 84㎡ | 73 |
| 99㎡ | 2 |
| 합계 | 287 |
총 287 가구 중 74 타입이 가장 많은 물량을 차지하고 있으며, 99 타입을 제외하고는 모두 85㎡ 이하로, 지역, 면적별 청약 예치금은 200~300만 원입니다.과천시 및 경기도, 인천, 서울 거주자에 따라 필요 예치금이 다릅니다. 예치금 등 1순위 청약 정보 등 청약 관련 내용은 아래에서 확인하실 수 있습니다.
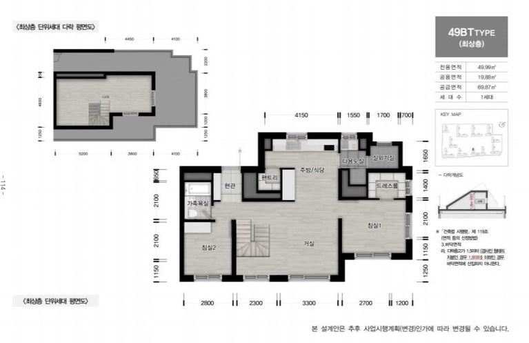
2. 과천 프레스티어 자이 49㎡(약 20평) 평면도
과천 프레스티어 자이 일반 공급 물량 중 가장 아담한 49 타입으로 약 20평입니다. 일반분양 44 가구 공급 예정입니다. 1~2인 가구 및 신혼부부를 위해 특화된 평형입니다. 아래 다른 평형도 마찬가지지만, 과천 프레스티어 자이는 복층형을 제외하고는 일반분양 전 세대가 4 BAY형입니다. 최상층의 경우에는 복층형으로 다락이 포함되어 있습니다. 49 타입은 49A, 49B로 나뉘며 49B는 3면 발코니형으로 드레스룸, 침실 1 크기 확장된 점이 차이가 있습니다.




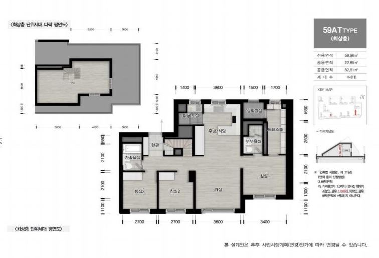
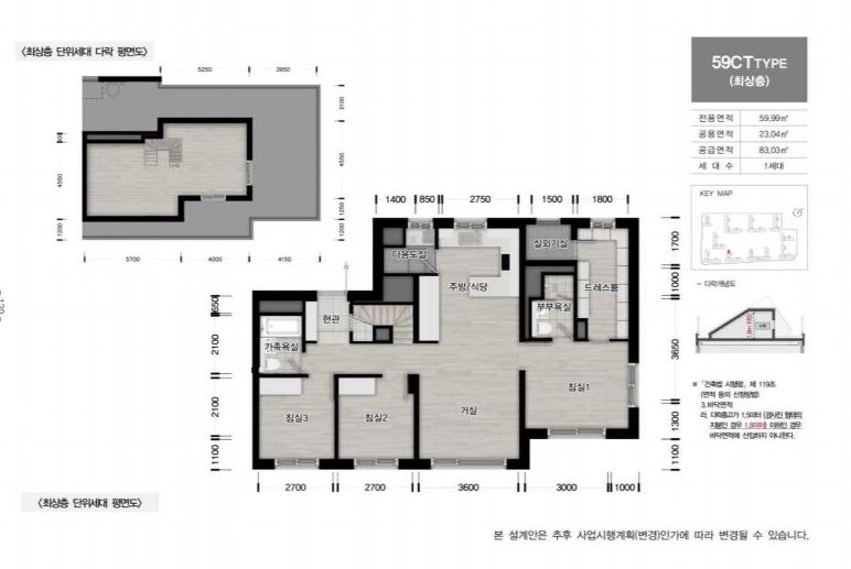
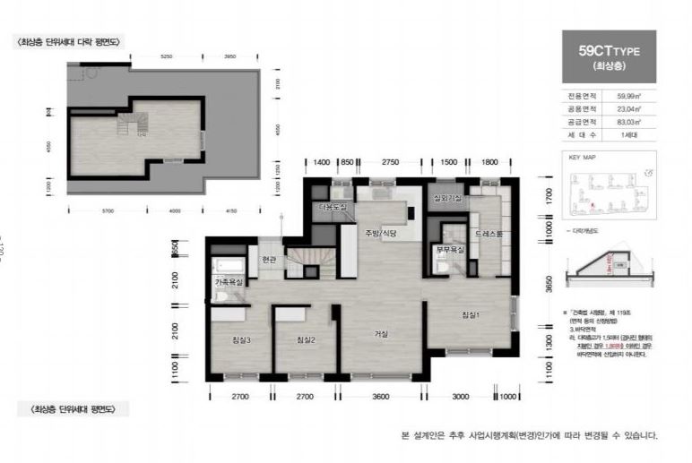
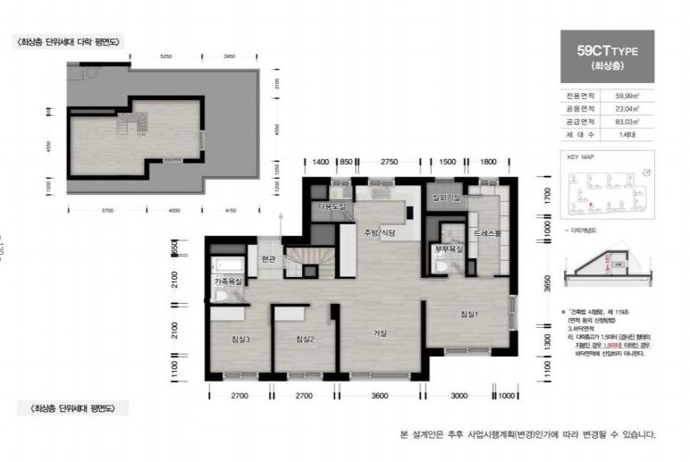
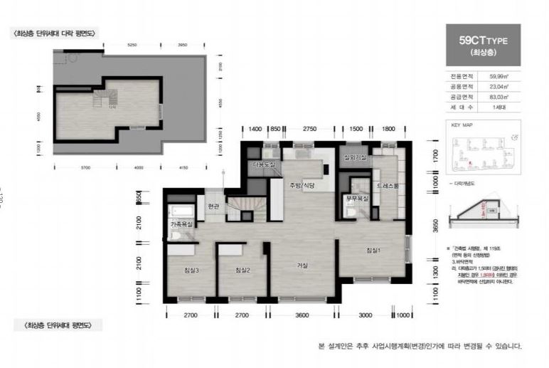
3. 과천 프레스티어 자이 59㎡(약 25평) 평면도
과천 프레스티어 자이 59 타입으로 약 25평으로 일반분양 77 가구 공급 예정입니다. 3~4인 가구를 위해 특화된 평형이며, 59A, B, C 세 타입으로 나뉘며 49타입과 마찬가지로 최상층은 다락이 포함된 구조 입니다. 59 A,B,C 타입의 차이는 A타입 기준으로 B타입의 드레스룸의 크기에 차이가 있으며, C타입은 침실 1의 2면이 창호 설치되는 차이점이 있습니다.






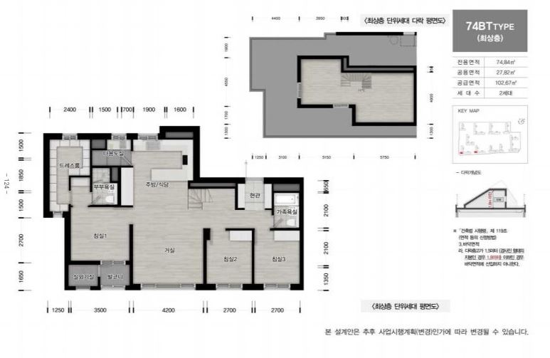
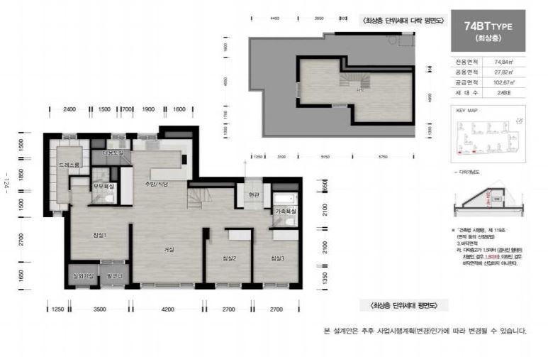
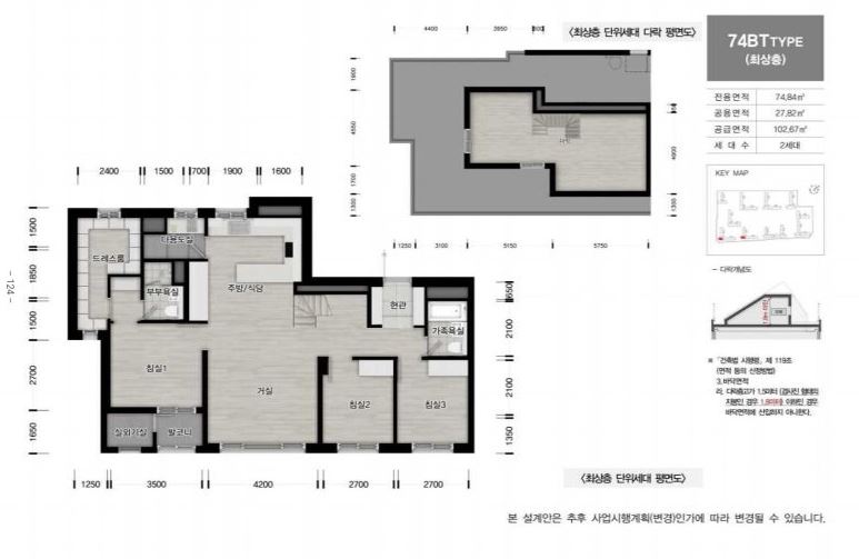
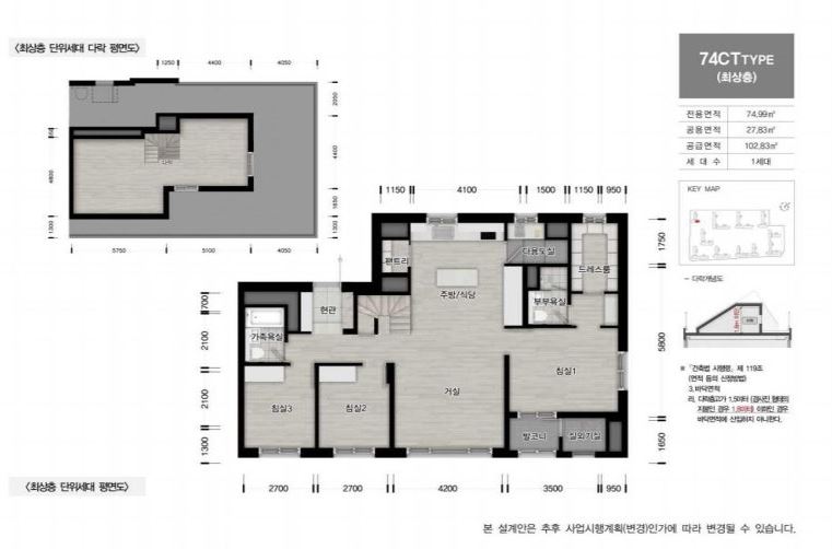
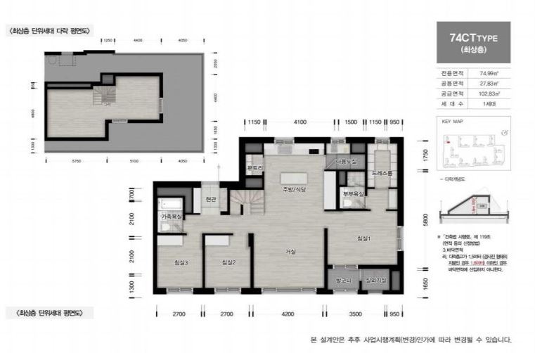
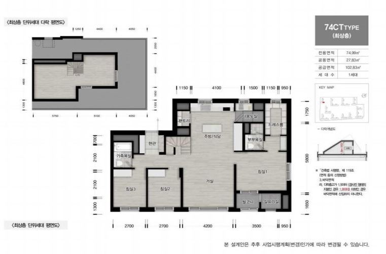
4. 과천 프레스티어 자이 74㎡(약 30평) 평면도
과천 프레스티어 자이 일반공급 물량 중 가장 많은 물량인 98 가구를 차지하는 74 타입, 약 30평입니다. 3~4인 가구 74A, C 타입은 아일랜드 식탁을 갖춘 주방이며, 74B 타입은 59 타입과 마찬가지로 ㄷ자형 식탁 구조입니다. 49C 타입은 특히 3면 발코니 형으로 침실 1, 드레스룸 크기가 확장됩니다.






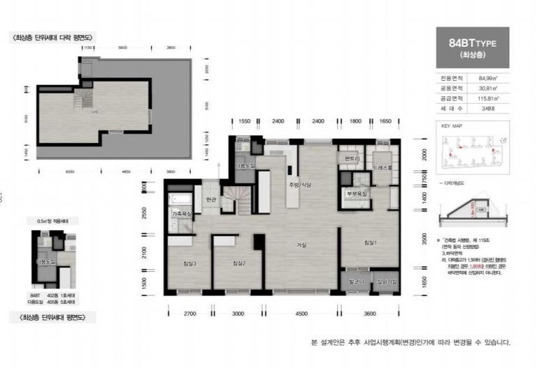
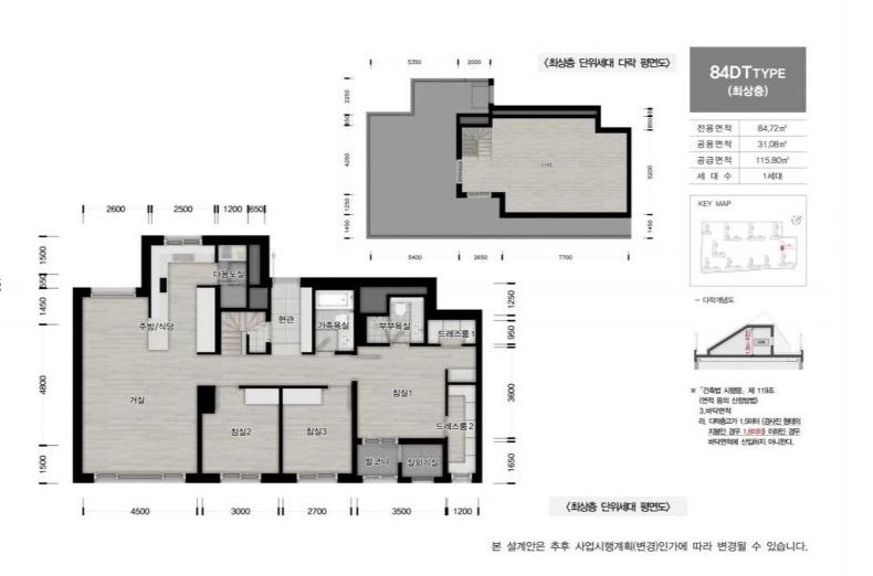
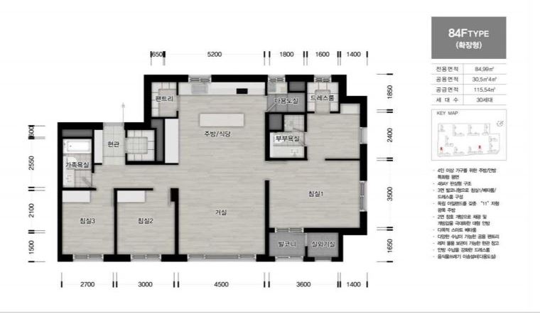
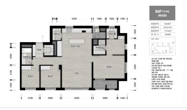
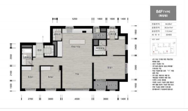
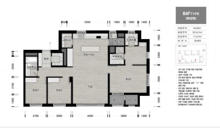
5. 과천 프레스티어 자이 84㎡(약 34평) 평면도
과천 프레스티어 자이 일반공급 가구 중 가장 많은 옵션으로 나뉘어있는 84 타입, 약 34평입니다. 흔히 국민 평형으로 불리는 84 타입은 일반 분양으로는 73 가구 공급됩니다. 각 평형도에서 확인되는 것처럼, 각 구조에 차이가 있으며, 특히 84E, 84H타입은 프라이빗 테라스가 있는 복층형 구조인 것이 특징입니다. 다만, 이 타입의 세대수를 고려했을 때 아마 조합원물량일 확률이 높습니다. 일반 분양 평형은 세대수가 가장 많은 84A, B, C, D 등의 타입으로 공급될 것으로 예상됩니다.












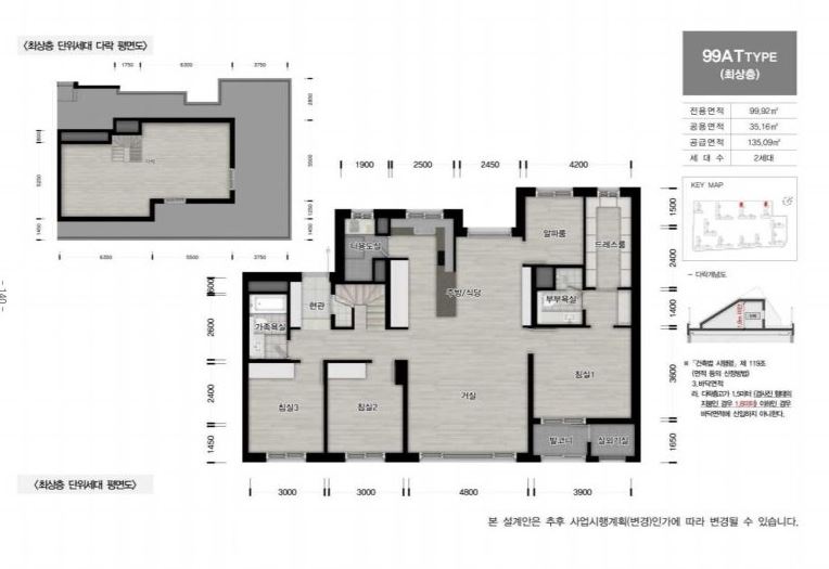
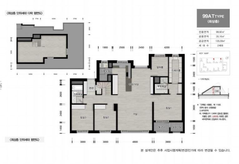
6. 과천 프레스티어 자이 99㎡(약 40평) 평면도
과천 프레스티어 자이 일반공급 가구 중 가장 적은 공급 물량인 2 가구 공급되는 99타입, 약 40평형입니다. 개인적으로는 이렇게 큰 평형이 일반물량에 공급되는 경우가 잘 없어서 신기하면서도, 2가구 공급이라면 전략적으로 피해 가는 게 맞을 것으로 여겨지는 구조이기도 합니다. 99A, B타입에 다락방이 포함된 A타입으로 공급 예정입니다. 99B 타입은 프레스티어 자이 구조 중 잘 보이지 않던 타워형입니다.
다만 일반분양 전 세대 4 BAY라는 내용을 참고해 보면, 아마 일반분양으로는 99A타입 2 가구 공급되지 않을까 싶네요.




이상으로 과천 프레시티어 자이 평면도에 대해 알아보았습니다. 청약 전에 미리 다양한 평형의 평면도를 미리 확인하셔서 전략적으로 청약 신청하시기 바라겠습니다.
'5분 꿀정보' 카테고리의 다른 글
| 청약홈 아파트 청약 신청방법 순서대로 알려드려요! (4) | 2024.09.03 |
|---|---|
| 과천 프레스티어 자이 입지 조건 알아보기 (3) | 2024.09.02 |
| 과천 프레스티어 자이 분양가, 평면도, 청약 등 총정리(9월 분양 예정) (3) | 2024.09.02 |
| 올림픽파크 서한포레스트 입지조건 한 눈에 확인하기 (1) | 2024.08.30 |
| 올림픽파크 서한포레스트 평면도 확인 (0) | 2024.08.30 |
